+375 17 317 82 26
Перезвоним в удобное для вас время
- Главная
- Каталог
- Накопительные бойлеры и баки
- Giersch GiegaTherm R
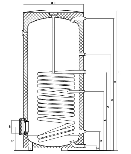
Giersch GiegaTherm R
Производитель: Giersch
Евгений+375 17 294 93 93+375 29 778 74 04eyushko@resoteh.by
- Вертикальный, тонкостенный, цилиндрический дизайн в соответствии с DIN 4753 с фиксированным сварным трубчатым теплообменником
- коррозионно-стойкие поверхности, контактирующие с питьевой водой покрыты качественной эмалью
- дополнительная катодная защита с использованием магниевого анода
- теплоизоляция толщиной 50 мм из мягкой пены
- съемный пластиковый кожух
| Объем водонагревателя | Артикул | Высота | Ширина | Масса | Поверхность нагрева |
| 120 л | 06-10-51812 | 835 мм | 560 мм | 65 кг | 0,8 м² |
| 160 л | 06-10-52851 | 1222 мм | 540 мм | 54 кг | 0,75 м² |
| 200 л | 06-10-52852 | 1473 мм | 540 мм | 65 кг | 0,95 м² |
| 300 л | 06-10-52853 | 1334 мм | 700 мм | 99 кг | 1,45 м² |
| Производитель | Giersch |



